未来の建築家を発掘・一流建築家が審査員! 建築界注目の現役学生の木造住宅設計コンテスト

受賞作品

2018 課題テーマ
「もう一度、庭付き一戸建て」ー郊外での暮らしの再考ー

相羽建設株式会社賞

「庭がまわる家 
   ー擁壁を活かす住まいー」


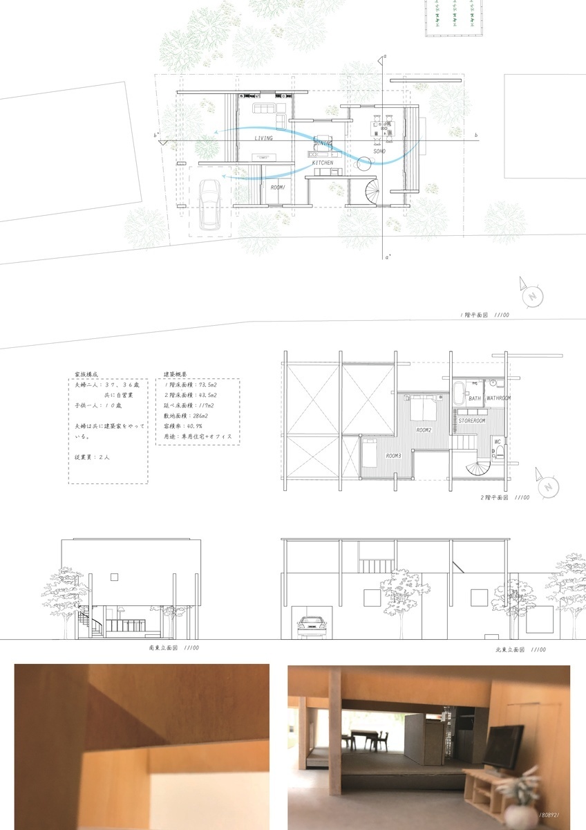
   京都造形芸術大学大学院 高久 和弥

大野建設株式会社賞

「居心地の通り道
  ー外と内、家と街の合間ー」


   芝浦工業大学 林 侑也

株式会社はなおか賞・荻野寿也賞

「クスノキと鼓動する住まい
ークスノキと家族の成長とともに
                                   可変する住まいー


  武庫川女子大学大学院 八木 みちる
             宮本 新菜
                                   本間 優花

株式会社クレイル賞・松岡拓公雄賞

「よって民家? 
ー通り土間で繋がるまちと家族のくらしー

  滋賀県立大学大学院 廣瀬 奈々

株式会社コアー建築工房賞

「みんなの居場所  
ー子どものいない夫婦の住宅ー

   兵庫県立大学 松浦 紅音

株式会社サン工房賞

「土間庭のつながる家

   京都工芸繊維大学 沖野 純
                              菰池 拓真
                              長澤 歩美
                              島岡 理久弥

株式会社土屋ホームトピア賞

「家の中の十字路
        ーつくるとこわすの途中地点ー


   千葉工業大学大学院 櫻井 友美
             柴田 ゆき乃

株式会社ネストハウス賞

「まちの団欒
-庭から広がる新しい
             パブリックスペースの提案-


   共立女子大学 榎本 唯花
                        天野 有紗
                        佐治 ひとみ
                        丸尾 優果

有限会社福富建設賞

「移ろう住まい  
    ー浸水被害からもう一度ここで家を建て
     直すことを決意した二人の夫婦の物語ー


   岡山県立大学 板井 翔大
                        桐島 実希
 岡山県立大学大学院   安達 駿

株式会社ミヤワキ建設賞

「暮らしをつなぎ、
                       心をつむぐ庭」


   京都工芸繊維大学 日髙 理紗子
          寺田 遼太郎
          萩尾 涼太

家印株式会社賞

「カイニョと暮らす家 
ー屋敷林に囲まれた暮らしの再考ー


   熊本大学 町田 陽子

株式会社クレア賞

「海の見える家」

   早稲田大学 小日向 孝夫

ひだまりほーむ(株式会社鷲見製材)賞

「減って、減らして、増えて。」

   明治大学 佐野 由宇
      清水 隆太郎
      黒須 義人  
                  田村 千晶
      大澤 悠矢

株式会社山弘賞

「一+1」

   芝浦工業大学     柴田 敏樹
   芝浦工業大学大学院  築舘 明友